TŘI LUXUSNÍ BYTY
V SRDCI MĚSTA

PŘEDSTAVUJEME VÁM

VILADŮM ŽAMBERK

Projekt se nachází v ulici Nad Muzeem, pouhých 7 min pešky od Masarykova náměstí, veškerá občanská vybavenost, obchody, autobusové nádraží jsou přímo na dosah. Zároveň hned za domem najdete veřejnou zeleň. A navíc příroda Orlických hor, co by kamenem dohodil.

Cílem architektonického studia při návrhu tohoto Viladomu bylo zajistit residentům maximální soukromí a pocit života v rodinném domě, proto každý byt má svůj separátní vstup.

Samozřejmostí ke každé bytové jednotce je uzamykatelná garáž pro osobní automobil, která zároveň nabídne dostatek úložného prostoru. Ke garáži se dostanete suchou nohou.

Každý z bytů je jedinečný a nabídne majitelům život v centru města s pocitem vlastního rodinného domu se zahradou či rozlehlou panoramatickou terasou v případě střešního bytu.

HARMONOGRAM

A FINANCOVÁNÍ

• kolaudace stavby proběhne začátkem roku 2026

• 200 000 Kč do 10 dnů od podpisu rezervační smlouvy

• 10 % z kupní ceny do 45 dní od podpisu rezervační smlouvy

• zbylá část do 14 dnů od kolaudace stavby

136–367 m2

se zahradou či terasou

VLASTNÍ GARÁŽ

k autu suchou nohou

SOUKROMÍ

a přesto na dosah centru

STANDARD PREMIUM

vysoká úroveň materiálů

VYBAVENÍ BYTŮ

VŠECHNY BYTY JSOU V PROVEDENÍ STANDARD PREMIUM

Standardy vybavení staví na pečlivém výběru kvalitních značek českých i světových výrobců. Samozřejmostí je také v průběhu výstavby s Vámi upřesnit pozice osvětlení a elektrických zásuvek či přípravu pro kuchyň.

I přes vysoký standard v balíčku STANDARD PREMIUM vám rádi nabídneme možnost si zvolit nadstandardní vybavení ze skupiny DELUXE.

  • PODLAHOVÉ VYTÁPĚNÍ

    KVALITNÍ OBLOŽKOVÉ DVEŘE

    PLASTOVÁ OKNA S TROJSKLEM

    VELKOFORMÁTOVÉ OBKLADY AŽ KE STROPU V KOUPELNĚ

    fotovoltaická elektrárna pro ohřev teplé vody

INDIVIDUÁLNÍ ŘEŠENÍ

MOŽNOSTI VYBAVENÍ DELUXE

Pro toto vybavení Vám rádi připravíme individuální kalkulaci.

  • REKUPERAČNÍ VĚTRÁNÍ

    KLIMATIZACE

    KOUPACÍ VANA

  • PŘEDOKENNÍ ŽALUZIE

    DŘEVĚNÁ TERASA

    ANTRACITOVÉ RÁMY V INTERIÉRU

  • VÁMI VYBRANÝ OBKLAD, ČI PODLAHOVÁ KRYTINA

    stínící systém teras

    příprava na elektro nabíječku

VILADŮM ŽAMBERK

PROHLÉDNĚTE SI BYTY

  • Byt 1
  • Byt 2
  • Byt 3
  • Garáž 1
  • Garáž 2
  • Garáž 3
  • Rozloha bytu

    121,5 m2
  • Podlaží

    1. PP spodní zahradní
  • Dostupnost

    PRODÁNO
  • Dispozice

    3 + KK
  • Zahrada

    246 m2
  • Cena

    6 090 000 Kč
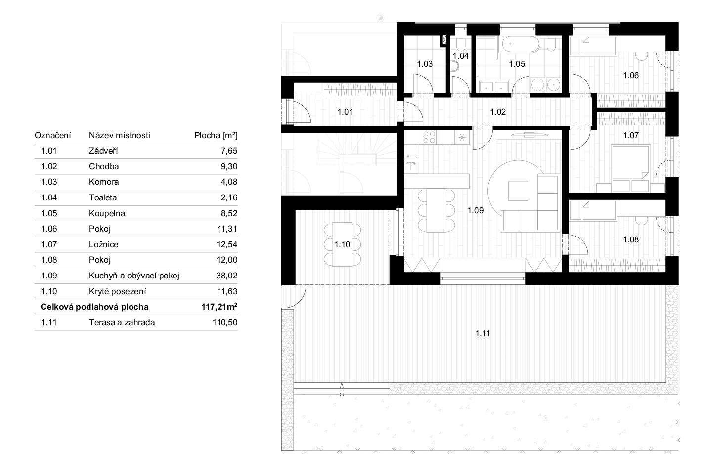
  • Rozloha bytu

    117,21 m2
  • Podlaží

    1. NP prostřední terasový
  • Dostupnost

    PRODÁNO
  • Dispozice

    4 + KK
  • Zahrada a terasa

    110,5 m2
  • Cena

    6 290 000 Kč
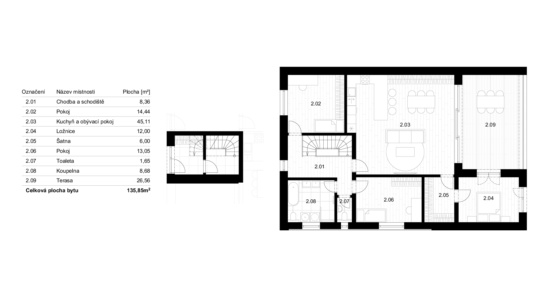
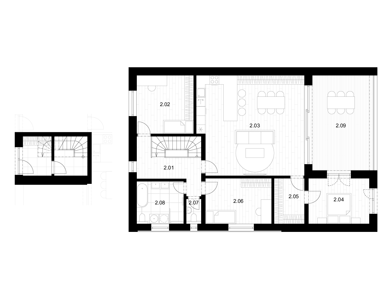
  • Rozloha bytu

    109,29 m2
  • Podlaží

    2. NP horní panoramatický
  • Dostupnost

    PRODÁNO
  • Dispozice

    4 + KK
  • Terasa

    26,56 m2
  • Cena

    6 490 000 Kč
  • Rozloha

    21,89 m2
  • Dostupnost

    PRODÁNO
  • Cena

    510 000 Kč
  • Rozloha

    21,89 m2
  • Dostupnost

    PRODÁNO
  • Cena

    520 000 Kč
  • Rozloha

    21,89 m2
  • Dostupnost

    PRODÁNO
  • Cena

    540 000 Kč
Zajímá vás více?

kontaktujte nás

  • Ing. Pavel Dvořáček

    733 431 755

  • Ing. Martin Záleský

    777 278 271

  • ZA PROJEKTEM STOJÍ

    PN Real s.r.o.

VILADŮM ŽAMBERK

NAPIŠTE NÁM